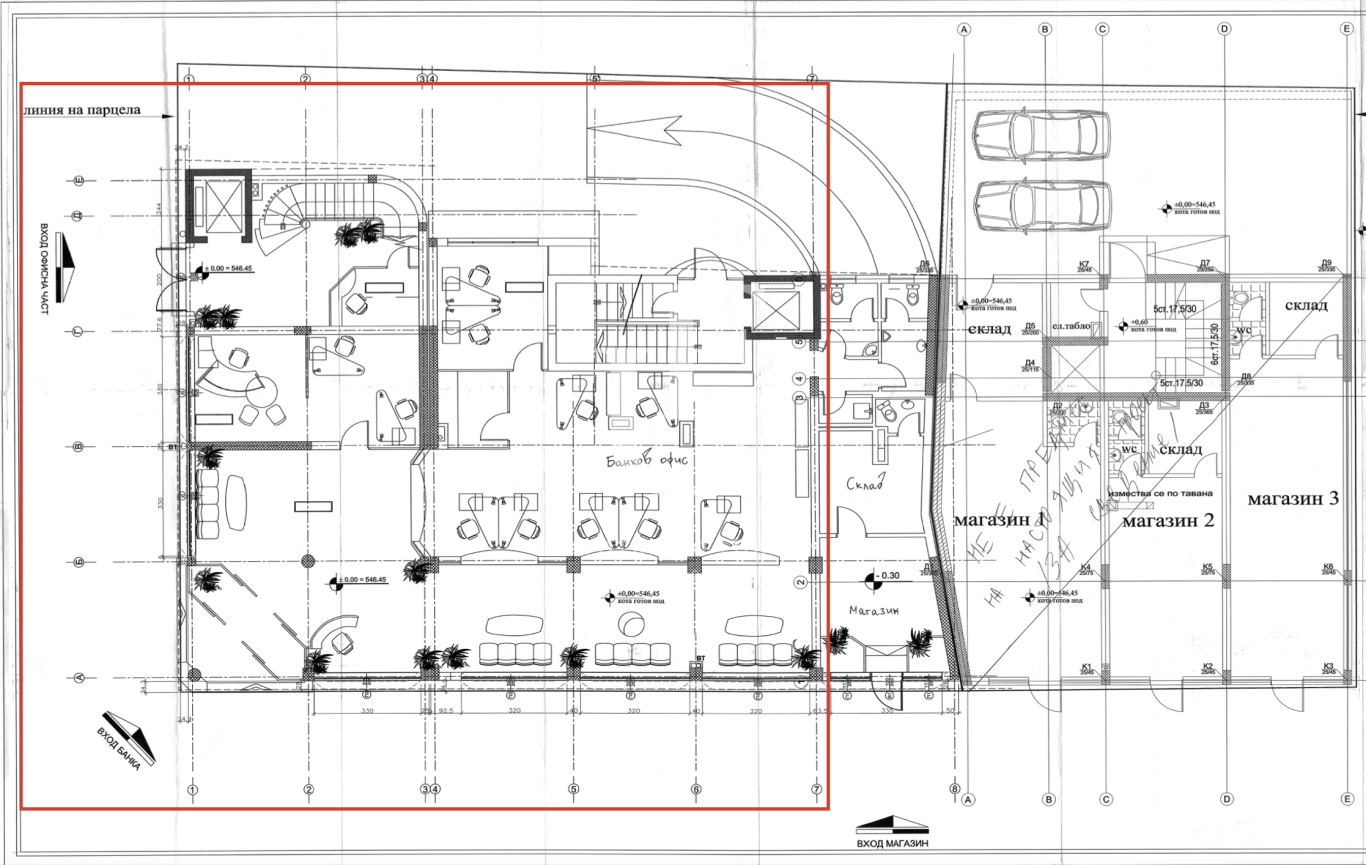
Unique. Estates предлага на Вашето внимание търговско помещение със статут на банков офис, разположено. на партерен етаж, с високи витринии и лице към централен булевард, осигуряващ бърз и лесен достъп. Обшата площ на помещението е 177 кв,м. разпределени функционално, с отличчна видимост и представителност, което го прави подходящо, както за банков офис, така и друг вид дейности - за аптека, шоурум и различни представителни магазини.
- Ref.ID N28875
- Под наем
- Търговски обект, без обзавеждане
- Център, София
Параметри
- Помещения: 2
- РЗП: 177 кв.м.
- Етаж: партер / 4
- Състояние: Добро
- Изложение: Юг
- Паркомясто
Предимства
- Чудесна локация
- Статут на банков офис
- Ъглово помещение с лице към основен булевард
Разпределение
Партерно помещение с площ от 177 кв.м. функционално разпределени на две полунива, санитарен възел,
За Района
Центърът на София е най-представителната, поддържана и динамична част на града. По границите му преминават основни булеварди като „Сливница”, „Васил Левски”, „Патриарх Евтимий”, „Генерал М. Д. Скобелев” и др. Тук се намират най-големите и интересни забележителности, паметници, храмове, произведения на изкуството, историческо и културно наследство, институции, музеи, галерии, разнообразни заведения, магазини, търговски центрове, пазари, паркове, хотели и др.
Една част от района е успяла да съхрани автентичния архитектурен стил и дух от миналото, който се отразява върху запазените сгради и реставрирани постройки. Най-вече около метростанция „Сердика“ и околността могат да бъдат наблюдавани разкопки от античността и едноименния град, съхранили следи от древната цивилизация на траките, обитавала тази местност. Тук се намира ротондата Свети Георги (IV век), базиликата Света София (IV-VI век), Софийски римски амфитеатър (II-III век) и останки от Сердика като източната и западната порта на древната крепост (II-VI век).
Центърът е сред най-престижните райони за живеене и покупка на имот с цел инвестиция. Преобладава старото строителство, като голяма част от сградите се реновирани и модернизирани, така че да отговарят на съвременните изисквания за комфортен живот. Инфраструктурата и транспортните връзки са много добри, като от тук преминават много линии наземен транспорт, а метростанция „Сердика” осигурява бързо придвижване по двете линии.
Ако искате да бъдете близо до всички удобства на града, то центърът на София е подходящо място за покупка или наемане на имот за вас.
Валентина Вишанска
Консултант
Консултант


