Unique Estates има удоволствието ексклузивно да Ви представи редова къща за продажба в бутиков жилищен проект в кв. Драгалевци, разположен в непосредствена близост до река и заобиколен от зеленина, тишина и отлична инфраструктура.
Проектът се отличава с модерна архитектура, решена в материали от най-висок клас – алуминиева дограма и фасада от Laminam и Alucobond, гарантиращи дълготрайност и устойчивост. Огледалната повърхност на последните нива позволява на къщите да се слеят с природата, като им придава лекота и уникална разпознаваема визия.
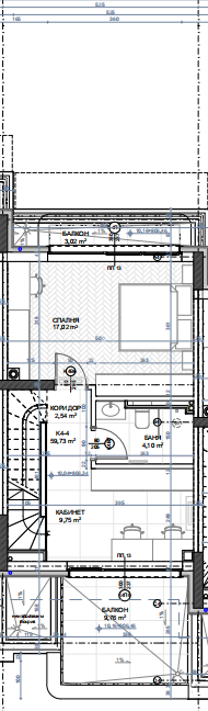
Вътрешните пространства са функционални и с високи тавани, което допринася за усещането за простор, светлина и комфорт.
Панорамни гледки от последните етажи към парк Витоша и към града, отлично изложение.
Проект, създаден за ценители на качествената архитектура, детайла и премиум начина на живот.


