Unique Estates има удоволствието да Ви представи нова бутикова сграда пред акт 14 в Бояна.Сградата се намира в тиха зона с чист въздух и бърз излаз на главни пътни артерии. Рапзолага с вътрешн двор и с детска площадка.Отоплението е подово и е предвидено на газ. Има възможност за закупуване на гаражи.
Тристаен апартамент в нова сграда пред акт 15 в кв. Бояна
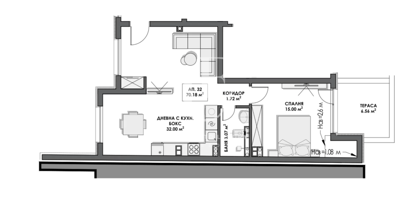
Описание
- Ref.ID K23904
- За продажба
- Апартамент, на шпакловка и замазка
- Бояна, София
Параметри
- 1 спалня
- 1 баня
- РЗП: 84 кв.м.
- Етаж: 4 / 4
- Състояние: В строеж
- Изложение: Север, Юг
- Гараж, 26 000 евро
- С гледка
- Затворен комплекс
Предимства
- Нова сграда
- Гараж- възможност за закупуване
- Тиха зона
- Двор
- Бърз достъп до центъра на София
Разпределение
Антре, дневна с кухня и балкон,баня , мокро помещение,спалня с баня, детска стая.
За Района
„Бояна” е един от най-престижните квартали в южната част на София, разположен в полите на планината Витоша. Намира се между жилищните комплекси „Драгалевци” и „Княжево” и е само на 7 км от центъра на столицата. Достъпът до него е перфектно обезпечен в инфраструктурно отношение. Свързан е с бул. България, който осигурява директен достъп до центъра, а придвижването до големите райони наоколо е бързо чрез Софийския околовръстен път. Има няколко детски градини, образователен център, спортна база и ресторанти.
Безспорни предимства на местоположението на квартала са чистият планински въздух, съчетан с естествената паркова среда, тишината, спокойствието и прекрасната панорамна гледка към София. Национален парк „Витоша” с природните си феномени и туристически маршрути е истинско богатство за живеещите в района. От тук започва и пътят към величествения Боянски водопад и Боянското езеро, както и към множество хотели, хижи и екопътеки, които са любима дестинация на много столичани.
В миналото в „Бояна” се е намирала извънградската резиденция на севастократор Калоян, част от която е била прочутата Боянска църква. Тя е един от културните символи на България, включена в Списъка на световното културно и природно наследство на ЮНЕСКО. По времето на Втората българска държава там са живели аристократи и знатни семейства.
Днес тук се намират резиденциите на президента и вицепрезидента на България, министър-председателя и председателя на Народното събрание. В престижния район са построени и много от изключителните частни имения и луксозни жилищни комплекси в столицата.
Ако търсите спокойно място за живеене, ползвайки се с удобствата както на града, така и на планината, то „Бояна” е точното място за живеене за вас.
Михаела Търпинова
Консултант
Консултант


