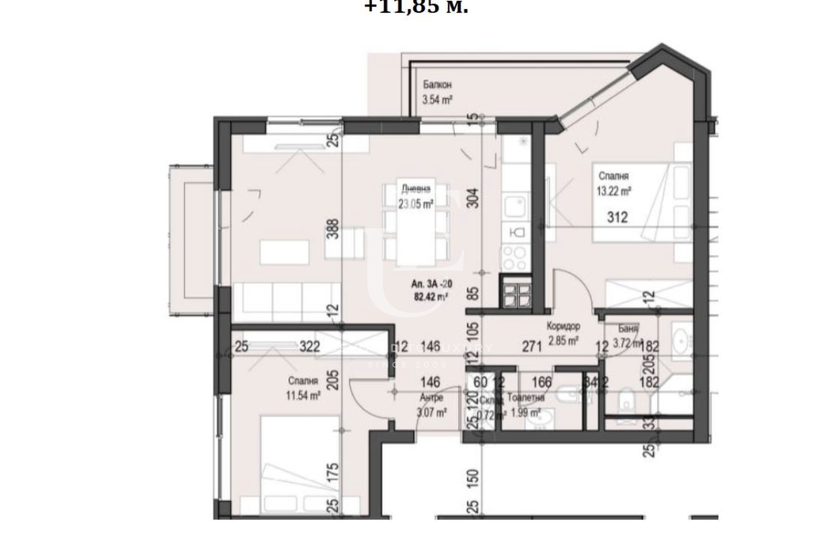
Unique Estates има удоволствието да Ви представи за продажба тристаен апартамент в затворен жилищен комплекс. Комплексът се намира в непосредствена близост до центъра на гр. София с излаз на главни пътни артерии.
Имотът е част от съвременна сграда, проектирана с внимание към комфорта на съвременния градски човек и изградена от доказан инвеститор с безкомпромисен стандарт на изпълнение. Апартаментът се отличава с функционално разпределение, естествено осветление и ориентация към озеленените вътрешни пространства на комплекса.
Обитателите ще се радват на богато озеленен двор, модерна детска площадка и кътове за отдих, които създават усещане за уединение и хармония в градска среда.
 
                 
                             
                             
                             
                             
                                 
                             
                             
                             
                            


 
                