Unique Estates представя на Вашето внимание просторен мезонет за продажба, разположен в новострояща се модерна жилищна сграда на бул. „Симеоновско шосе“ - една от най-предпочитаните и динамично развиващи се локации в южната част на София. Районът предлага отлична инфраструктура, бърз достъп до центъра на града и Околовръстния път, както и близост до университети, бизнес зони и търговски центрове, съчетавайки удобството на градската среда със спокойствието на жилищна зона.
Апартаментът е разположен на пети и шести етаж и е проектиран на две нива, с обща площ от 221.51 кв.м, от които 190.28 кв.м чиста площ и 31.23 кв.м общи части. Жилището впечатлява с функционално разпределение, просторни помещения и обилна естествена светлина.
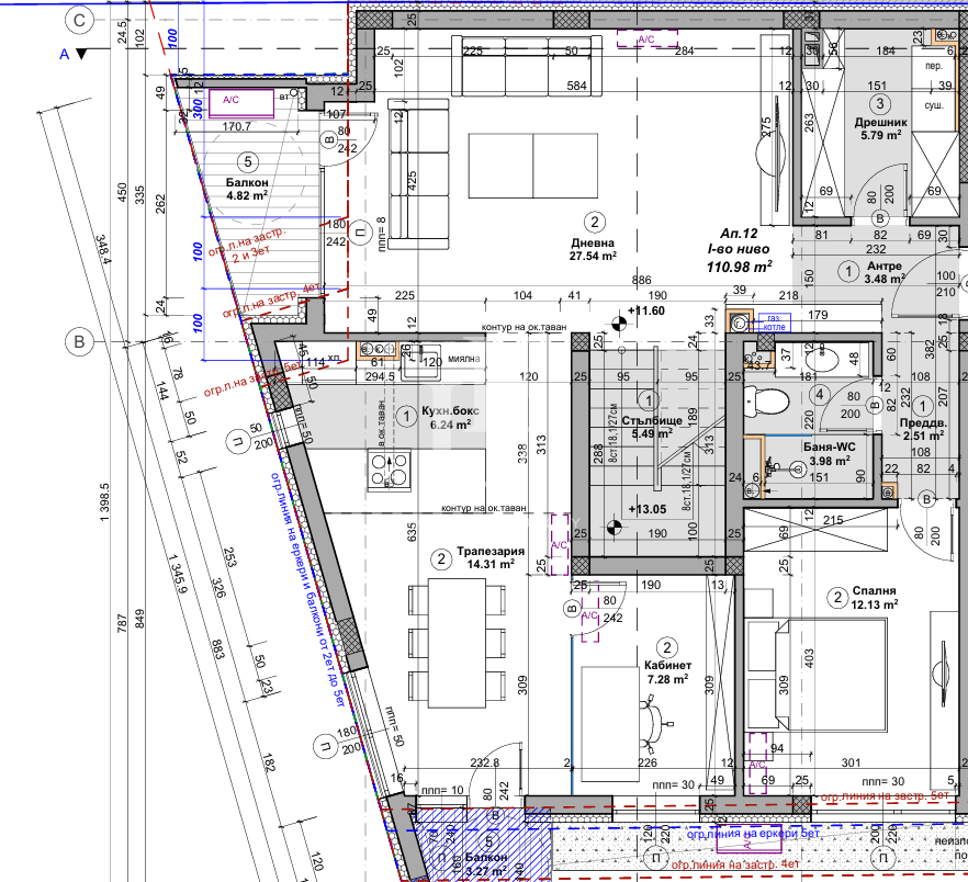
Първото ниво е с площ от 110.98 кв.м. и включва просторното антре, което води към светла дневна, която плавно преминава в трапезария и кухненски бокс, оформяйки отворено и комфортно пространство. На същото ниво са разположени кабинет, подходящ за работа от дома, както и спалня със собствена баня и преддверие, осигуряващи допълнително удобство и уединение. Балконът допълва усещането за простор, а вътрешно стълбище осигурява връзка към второто ниво.
Второто ниво, с площ от 79.30 кв.м, е обособено като нощна зона и предлага спокойствие и функционалност. Разположени са две просторни спални, едната със собствена баня и дрешник, както и втора баня, коридор и складово помещение, допълващи удобството на жилището.


