Unique Estates има удоволствието да представи на Вашето внимание медицински център на две нива за продажба в нова сграда със смесено предназначение в близост до квартал Оборище.
Районът е един от най-централните и предпочитани в София, отличаващ се с отлично развита инфраструктура, спокойна градска среда и висока концентрация на административни, жилищни и бизнес сгради. Локацията предлага, удобен градски транспорт, включително метро, както и близост до паркове, болници и ключови обществени услуги.
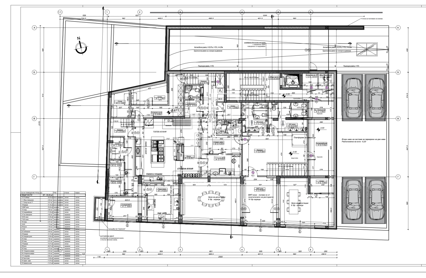
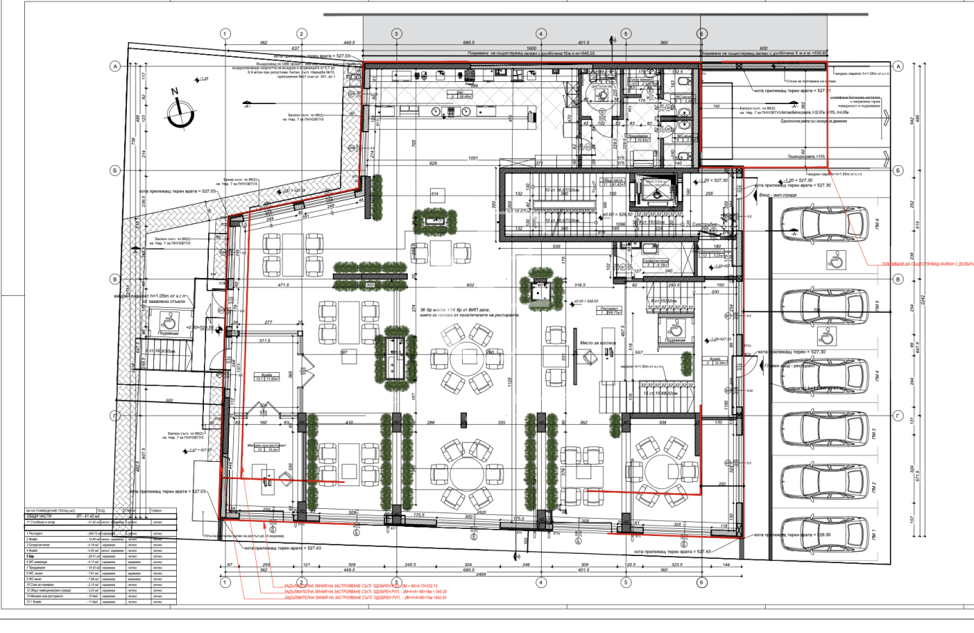
Помещението е ситуирано на партерно ниво (-1) с обща площ от 960 кв.м и предлага отворено пространство, което позволява гъвкаво проектиране и функционално разпределение според нуждите на медицинска дейност - кабинети, манипулационни, чакални и административни зони.
Осигурени са основните технически инсталации - електро, ВиК, отопление/охлаждане и вентилация, с възможност за допълнително надграждане и адаптация. Двете нива са функционално свързани посредством широко и удобно стълбище, което позволява ефективно зониране и оптимална организация на пространството.
Имотът представлява отлична възможност за реализиране на медицински проект по индивидуална концепция, както и за инвестиция с дългосрочен потенциал.
В цената са включени шест надземни паркоместа, осигуряващи удобство както за персонала, така и за посетителите на обекта.


