Unique Estates има удоволствието да предлага за продажба апартамент с две спални в новострояща се бутикова жилищна сграда, разположена в един от най-предпочитаните и динамично развиващи се райони на южна София – кв. Манастирски ливади – изток, район Триадица.
Сградата е ситуирана на спокойна и комуникативна локация, граничеща с ул. "Васил Стефанов", с бърз и удобен достъп до бул. България и Околовръстен път, което осигурява лесна връзка както с централните части на града, така и с основните изходни артерии на София. В непосредствена близост се намират Mall Bulgaria, множество магазини, ресторанти, супермаркети, училища, детски градини и разнообразни услуги, които осигуряват комфортен и модерен начин на живот.
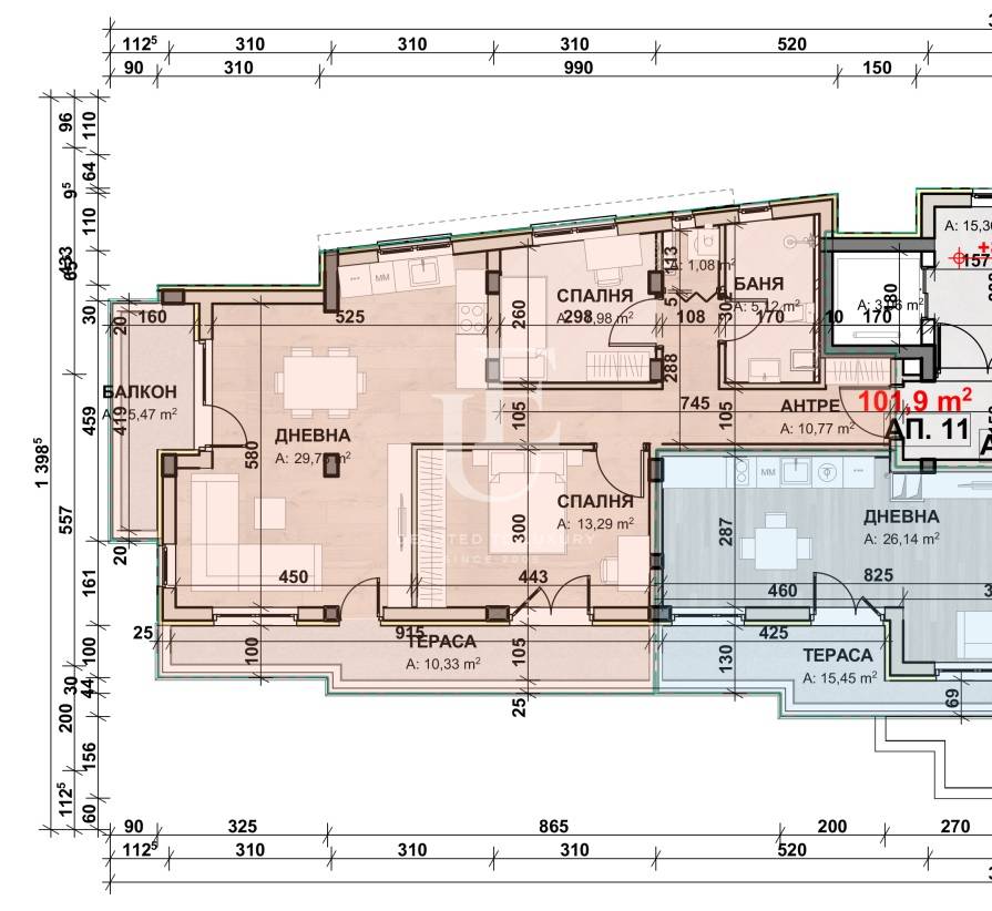
Жилището е проектирано с функционално и добре обмислено разпределение, просторни помещения и отлична естествена осветеност, което създава усещане за пространство и уют. Имотът е подходящ както за собствено ползване, така и като перспективна инвестиция в район с устойчиво търсене.
Сградата се отличава със съвременна архитектура, висококачествени материали и внимание към детайла, като предлага комфортна и модерна жилищна среда. Очаквано завършване на сградата: Акт 15 – есен 2026 г.
В сградата се предлага надземно паркомясто за закупуване или наемане. За удобство на бъдещите собственици е предвидена и възможност за извършване на довършителни работи по апартаментите.


