Unique Estates има удоволствието да Ви представи изключителна редова къща на три нива за продажба, разположена в престижен затворен комплекс в района на Камбаните, в подножието на Витоша. Проектът представлява съвременен жилищен комплекс от ново поколение, който съчетава комфорт, сигурност и хармония с природната среда.
Комплексът се разпростира върху обща площ от 110 000 кв.м, от които 88 000 кв.м са озеленени площи, създаващи усещане за простор, чист въздух и хармонична среда. Концепцията е вдъхновена от идеята за устойчив и интелигентен начин на живот, като съчетава висок стандарт на обитаване и максимална сигурност.
Разположението в подножието на Витоша осигурява непосредствен достъп до природата, както и бърза връзка с града чрез Околовръстен път и ключови бизнес зони. Това създава балансирана среда между динамиката на града и спокойствието на планината.
На разположение на жителите са множество удобства – фитнес и СПА зона, алеи за разходка, собствен парк, барбекю и пикник зони, зона за домашни любимци, лятно кино, детски център и площадки, йога студио, coworking пространство, кино и игрална зала, както и рецепция с контролиран достъп.
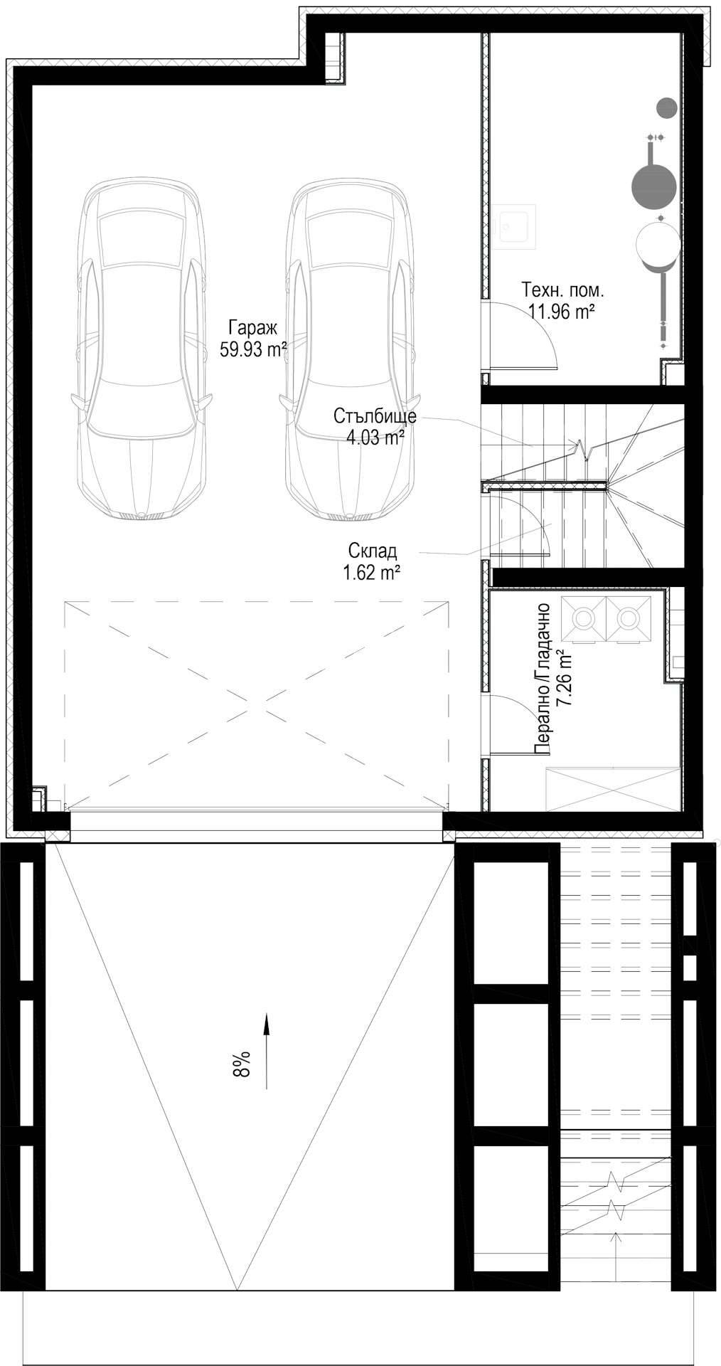
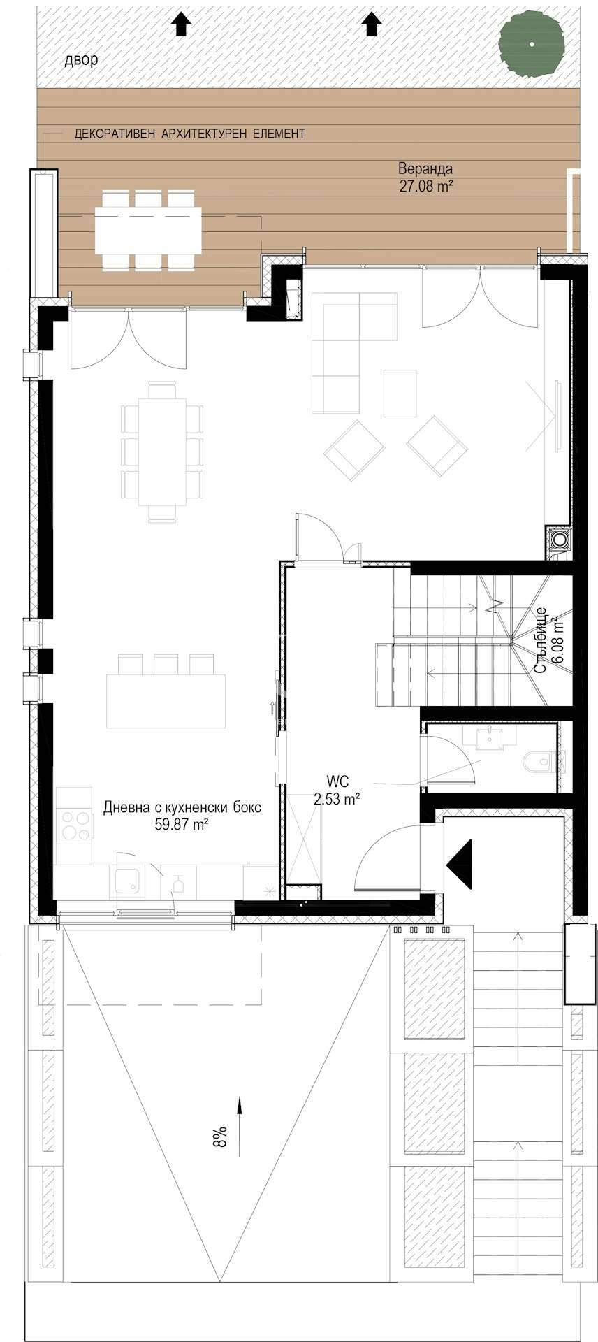
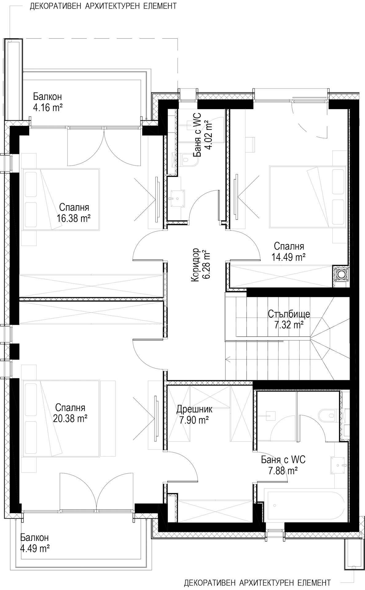
Къщата разполага с три спални, три бани, разгъната застроена площ от 402 кв.м и парцел с площ от 263 кв.м, като предлага функционално разпределение и възможност за комфортен семеен живот в рамките на затворена и сигурна среда.


