Unique Estates има удоволствието да Ви представи пентхаус за продажба в центъра на София - на метри от НДК, разположен в нова съвременна сграда с контролиран достъп.
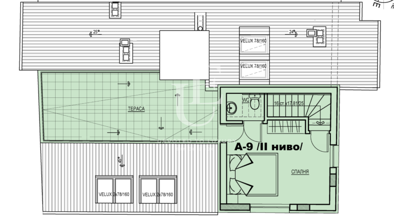
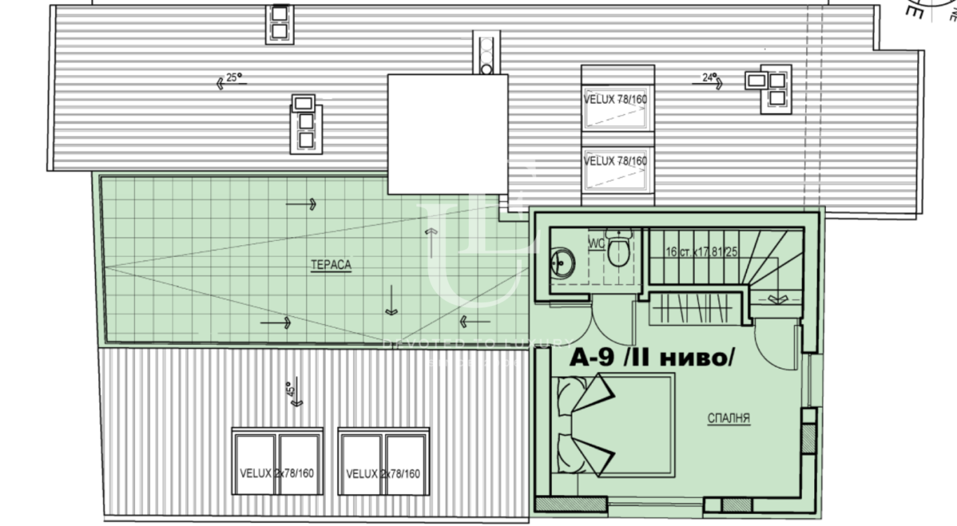
Жилището е с обща площ от 181 кв.м, разположен на шести от общо седем етажа, с изложение изток-запад-север. Имотът е в етап на строеж и се отличава с висок клас на изпълнение и модерна концепция за градско обитаване. Осигурен е асансьор с директен достъп до апартамента, което допълнително повишава усещането за комфорт и ексклузивност.
Разпределението е организирано на две нива. Първото ниво включва всекидневна с кухненски бокс, една спалня, баня с тоалетна и тераса. Второто ниво предлага втора спалня, баня с тоалетна и голяма покривна тераса с панорамни гледки към града.
Имотът разполага с възможност за закупуване на паркомясто на цена 90 000 евро.
Локацията остава едно от най-силните предимства - централна градска зона с отлична свързаност и непосредствена близост до НДК, метростанция, основни транспортни връзки, паркове, търговски обекти, заведения и услуги.


