Unique Estates presents to your attention a functional one-bedroom apartment for sale, located in a new building in one of the most peaceful and green neighborhoods of Sofia - Gorna Banya.
The property is located in close proximity to the Children's Hospital, which makes it an excellent choice for both own use and for investment for rental purposes.
The area is preferred for its clean air, greenery and quick access to the Ring Road and the city center.
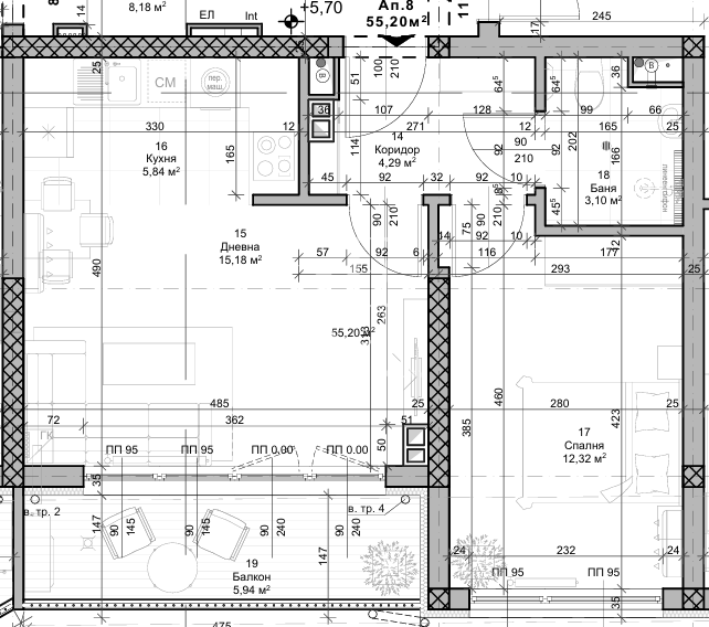
The apartment has an area of 67 sq.m. and is located on the third floor of four. The layout includes an entrance hall, a spacious living room with a kitchenette, a bedroom, a bathroom with toilet and a balcony, which provides comfort and functionality for everyday life.


