Unique Estates presents to your attention a spacious house with Act 16, located in a new gated complex in the village of Lozen with direct access from the Ring Road.
The complex offers a fully developed environment for modern family life, including a functioning school and kindergarten, playgrounds and sports fields.
The property is an end house with a nice southern yard and favorable exposure. The total area of the house is 294 sq m and is located on a plot of 250 sq m, and has two covered parking spaces.
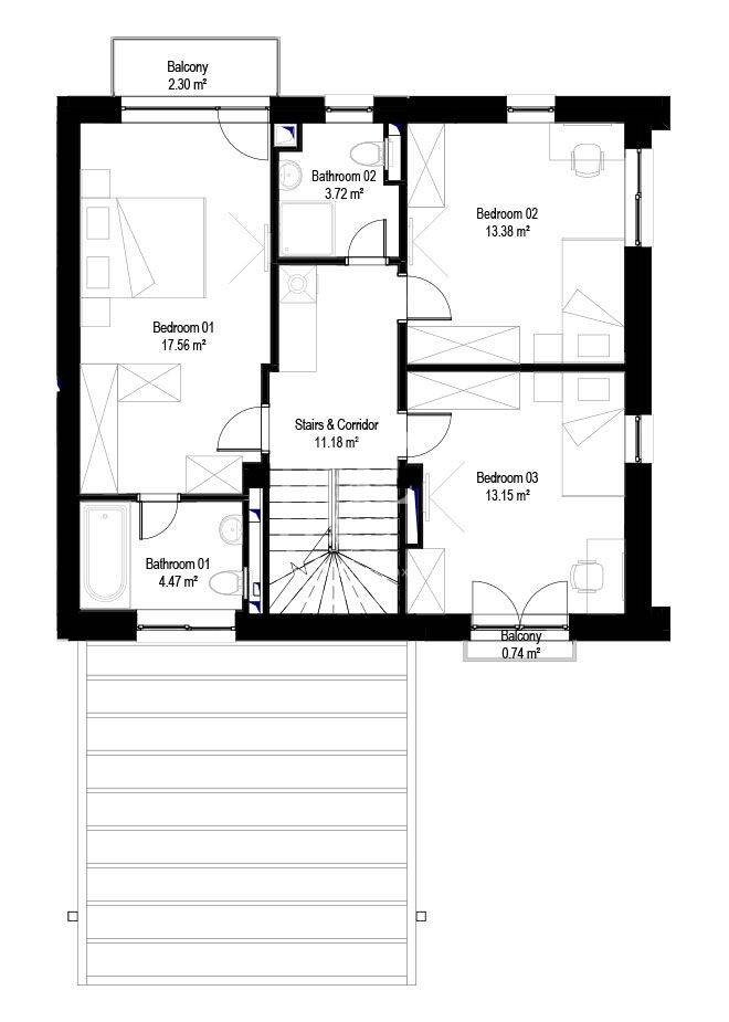
The layout is functionally organized on four levels. On the basement floor there is a corridor with a staircase, a technical room, a winery and a bathroom. The first floor includes an entrance area with a staircase, a spacious living room with a kitchenette and a guest toilet, creating a comfortable and practical living area. On the second floor there is a corridor, a master bedroom with an en-suite bathroom, two more bedrooms, an additional bathroom and two balconies. The third floor is set aside as a studio with a bathroom, suitable for an office, workspace or relaxation area.
The price is excluding VAT.


